Dénia une a jóvenes y mayores en su nuevo centro de barrio París Pedrera
El Ayuntamiento inicia la reforma de un local que acogerá actividades para la infancia, la adolescencia y la tercera edad con una inversión de casi 300.000 euros

Dénia une a jóvenes y mayores en su nuevo centro de barrio París Pedrera
Denia - Publicado el
1 min lectura
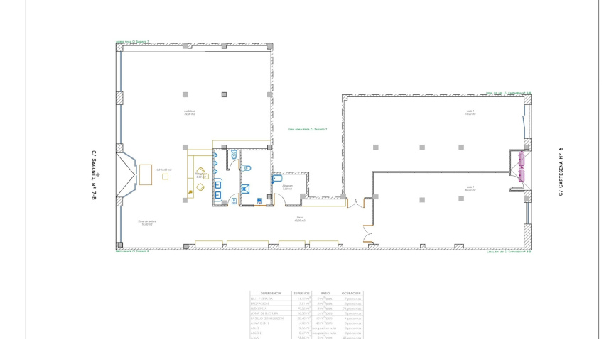
El Ayuntamiento de Dénia ha comenzado las obras de reforma de un local municipal en la calle de Sagunt, 7, que se convertirá próximamente en el nuevo centro de barrio París Pedrera. Con una superficie útil de 310,89 metros cuadrados, el espacio está diseñado para acoger actividades destinadas tanto a la infancia y la adolescencia como a las personas mayores.
Fomentando lazos intergeneracionales
La gestión del centro correrá a cargo de las concejalías de Bienestar Social y del Mayor. La concejala de Bienestar Social, Melani Ivars, ha señalado que, "aprovechando los dos perfiles de personas usuarias, se fomentarán también las actividades intergeneracionales como hemos hecho en otras iniciativas como los 'Parcs habitats'".
Aprovechando los dos perfiles de personas usuarias, se fomentarán también las actividades intergeneracionales"
Concejala de Bienestar Social
Por su parte, la concejala del Mayor, Marta Gascó, ha recordado que la promoción de este intercambio de experiencias es una de las acciones recogidas en el plan de “Dénia, Ciutat amigable amb les persones majors”.
Actividades para todas las edades
El nuevo centro será una de las sedes del Consell Local d’Infància i Adolescència (CLIA), que propondrá distintas actividades. Entre los proyectos se encuentra la creación de una biblioteca del juego, con material didáctico y de mesa, además de una zona de lectura.

Plano de cómo quedará el centro de barrio Paris Pedrera
En la parte del fondo del local se habilitarán dos aulas polivalentes, separadas por un panel móvil para una mayor versatilidad. Estos espacios serán utilizados por la Concejalía del Mayor para impartir talleres de las Aules de la Tercera Edat, organizar charlas y acoger las reuniones del Consell del Major.
Plazos y presupuesto
Los trabajos de reforma han sido adjudicados por un importe de 288.358,73 euros (IVA incluido). El plazo de ejecución previsto para completar las obras es de tres meses, tras los cuales el nuevo centro de barrio abrirá sus puertas al público.
Este contenido ha sido creado por el equipo editorial con la asistencia de herramientas de IA.



